歡迎訪問江蘇科瑞氟素科技有限公司官方網站!

産品描述
電子級鋼襯四氟設備所應用的是真空粘貼工藝,可根據使用溫度(-70℃-180℃)和介質選擇适合的氟材料(PFA PVDF ECTFE PTFE )和粘合劑進行設計和加工。完全杜絕了傳統工藝的不耐負壓、高溫、空鼓、剝離等問題,在精細化工、半導體、制藥等行業得到了很高評價。
選擇相關适宜的罐箱型号:

産品規格:
襯 氟 ISO 罐 箱 規 格 | |
制 造 商 | 江蘇科瑞氟素科技有限公司 |
品 牌 | RANA瑞能 |
尺 寸 | 10ft( 6,000~8,000L)-20ft( 12,000 ~ 22,000L) |
殼體材質 | 碳鋼/不鏽鋼/定制 |
内襯材質 | PTFE E.T, New-PTFE E.T/G.B.K, PFA G.B.K |
内襯等級 | PPT-PPB-PPM |
加工工藝 | 闆襯 - (PTFE, PFA, ETFE, PVDF, ECTFE, NEW-PTFE) |
設計标準 | ASME, ISO, IMDG, US-DOT, ADR, RID CSC, UIC,TIR, TC, AAR 600 etc |
厚 度 | 通常2-3 mm PTFE/ 2.3 mm PFA,根據客戶需要定制 |
鋼襯四氟儲罐特點 | 一:優良性能:耐高溫、耐腐蝕、耐負壓。 二:安全可靠:耐久性、耐藥品性、易清潔性、低析出離子。 三:性價比高:根據客戶提供的參數選擇設計最經濟合理的氟塑料和粘接劑。 |
應用範圍 | 高純級内襯PTFE、高純級内襯PFA成功應用于半導體行業對于電子級化學品的品質要求,其設備可滿足電子化學品生産、儲存、純化、運輸等方面的需要,目前同時把此工藝延伸到醫藥、生化、石化、精細化工、氟化工、氯堿以及傳統化學工業,防腐品質和使用壽命有了更大的提高。 |
主要産品 | 鋼襯四氟防腐設備、襯四氟防腐儲罐、襯氟槽車罐、襯氟儲運槽罐、襯氟汽運罐、襯氟船運罐、襯氟ISO罐箱等。 |
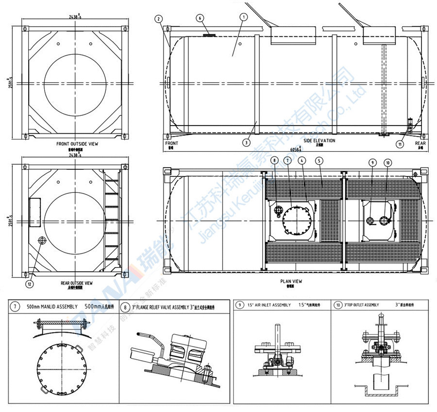
罐箱設計圖:

溫馨提示:
爲了幫助我們更好爲您提供設備解決方案,請提供以下相關信息:
1.工作介質是什麽:如什麽濃度的強酸,強堿,有機溶劑?
2.工作溫度是多少?
3. 工作壓力是多少?
4. 是否有相關儲罐容器的直徑/高度/容量?或依據容積由我們設計?
5. 期望的殼體材質和襯裏材質是什麽?是否有配件清單?
6. 是否可以提供草圖/圖紙給我們作爲參考。
産品推薦
公司名稱:江蘇科瑞氟素科技有限公司
公司地址:江蘇省泰州市姜堰區民營經濟産業中心
銷售總機:0523-88129105
官網域名:www.keruiing.com
公司郵箱:hhj680@126.com


版權所有:江蘇科瑞氟素科技有限公司 京ICP證000000号